Proyecto

500 m² en C/ Ardemans, Madrid

Sector

Residenial

Tipo de obra

Reconversión de local comercial en espacio residencial con zonas comunes.

Ardemans

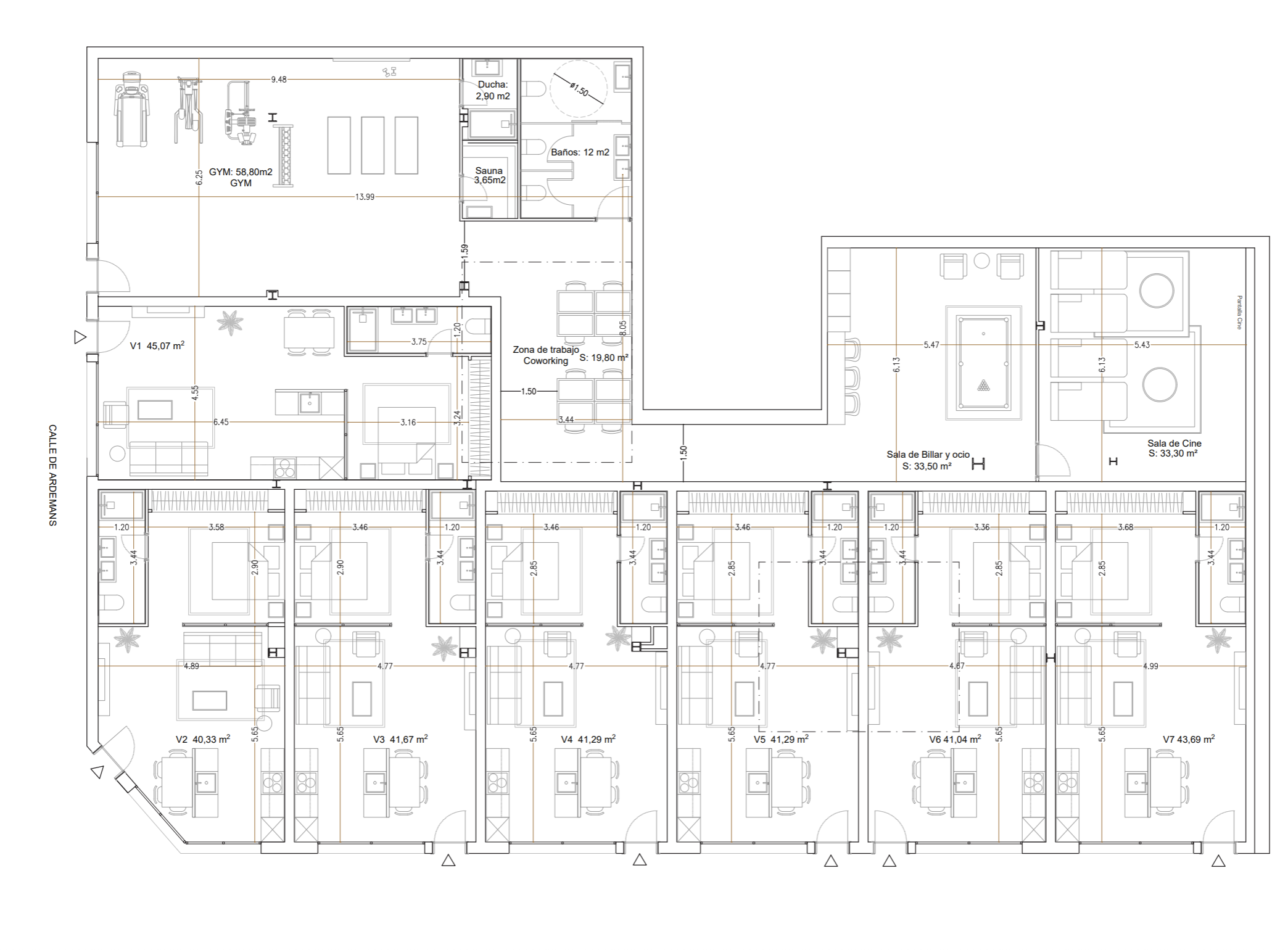
Ubicado en la Calle Ardemans 62, este proyecto representa una transformación integral donde un antiguo local comercial se convierte en un conjunto residencial contemporáneo con carácter propio.
El objetivo fue aprovechar al máximo el espacio existente para crear viviendas funcionales, luminosas y acogedoras, complementadas con zonas comunes que promueven la convivencia y el bienestar.

El conjunto se compone de siete estudios de entre 40 y 45 m², diseñados con una distribución fluida y coherente: cocinas integradas, dormitorios delimitados por cerramientos de vidrio y una cuidada paleta de materiales que combina maderas naturales, textiles cálidos y luz indirecta.
Cada detalle busca transmitir equilibrio y armonía, creando interiores que se sienten como hogar desde el primer momento.

El proyecto se completa con una zona de coworking, una sala de cine privada, una sala de billar y ocio y un gimnasio con sauna y ducha, espacios concebidos para favorecer tanto el trabajo como el descanso.
Los revestimientos en tonos neutros y el uso de iluminación arquitectónica aportan continuidad visual y una atmósfera serena en todo el conjunto.

Más que una rehabilitación, Ardemans 62 es una reinterpretación del espacio urbano: una muestra del compromiso de Velzia con la arquitectura funcional, el confort y la belleza atemporal.

Reforma integral en Madrid por Velzia Group
Reforma integral en Madrid por Velzia Group

Proyecto integral en Calle Ardemans 62, Madrid.
Transformación de un local comercial en un espacio residencial contemporáneo compuesto por siete viviendas tipo estudio y amplias zonas comunes que incluyen coworking, gimnasio, sauna, cine y sala de ocio.
Un diseño que combina materiales naturales, luz indirecta y líneas limpias para crear un entorno cálido, funcional y moderno.

Reforma integral en Madrid por Velzia Group