Proyecto

237 m² en C/ Villalar

Sector

Residenial

Tipo de obra

Reforma integral

Villalar

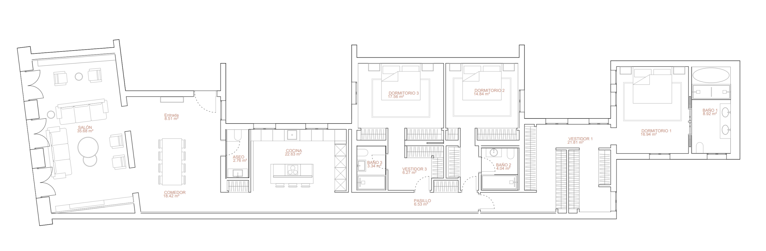
En este proyecto, Velzia transforma una vivienda de 237 m² en la calle Villalar en un espacio que combina la elegancia del pasado con la funcionalidad contemporánea.
El diseño se centra en la armonía de materiales nobles, como la madera de nogal y el mármol, con una paleta neutra que resalta la luz natural y la amplitud de las estancias.
Los techos moldurados, las carpinterías a medida y la iluminación indirecta refuerzan la sensación de equilibrio y sofisticación en todo el conjunto.

El proyecto destaca por su salón principal con biblioteca integrada, la continuidad visual entre cocina y comedor, y los vestidores en madera oscura con puertas de cristal ahumado, concebidos como espacios de diseño por sí mismos.
Velzia apuesta por un concepto de lujo sereno, donde cada detalle está pensado para generar confort, belleza y coherencia espacial.

Reforma integral de una vivienda de 237 m² situada en una finca señorial del barrio de Salamanca.
Velzia reinterpreta la esencia clásica del edificio con una propuesta contemporánea donde conviven la madera, la luz natural y los detalles arquitectónicos originales. Cada estancia fue diseñada para transmitir serenidad, equilibrio y sofisticación atemporal.