Matarraña
C/ Rio Matarraña
866 m ²
12 Viviendas
Residenial
Edificio, obra nueva
En construcción, disponible para venta
Río Matarraña 6, un edificio de obra nueva diseñado por Velzia bajo un concepto de vivienda contemporánea, eficiente y funcional.
Un proyecto de escala boutique, con solo 12 viviendas, pensado para ofrecer calidad constructiva, confort y un alto valor a largo plazo.
Cada detalle ha sido cuidadosamente definido para crear hogares eficientes, bien aislados y preparados para un estilo de vida actual, combinando diseño, tecnología y bienestar.
EFICIENCIA Y CONFORT
Las viviendas del Edificio Matarraña incorporan soluciones constructivas y sistemas de última generación orientados a maximizar el confort y reducir el consumo energético.
La combinación de aerotermia, suelo radiante-refrescante, carpinterías de altas prestaciones y un aislamiento térmico y acústico de primer nivel permite disfrutar de una vivienda eficiente, confortable y con costes energéticos reducidos.
El edificio cuenta con Certificación Energética A, apostando por un modelo de construcción responsable y sostenible.
TIPOLOGÍAS DE VIVIENDA
El edificio cuenta con viviendas de 1 y 2 dormitorios, cuidadosamente distribuidas para aprovechar al máximo la superficie, la luz natural y la funcionalidad de cada espacio.
Las tipologías han sido diseñadas tanto para uso residencial como para inversión, ofreciendo una solución versátil y de alta demanda en el mercado actual.
Viviendas
Las viviendas se conciben con un diseño interior funcional y contemporáneo. Destacan los suelos vinílicos imitación madera, las cocinas en tonos neutros con encimeras Crystal Lux White, y los baños con revestimientos cerámicos de alta gama (Claros Grey, Opal Ice, East White). La iluminación indirecta y los detalles en carpintería blanca y níquel refuerzan el carácter moderno y luminoso de los espacios
UBICACIÓN
Situado en la calle Río Matarraña, en el distrito de San Blas–Canillejas (Madrid), el Edificio Matarraña se encuentra en una zona residencial tranquila y bien consolidada, con todos los servicios necesarios para el día a día.
Una ubicación que combina la cercanía al centro de Madrid con amplias zonas verdes, buena conexión mediante transporte público y rápido acceso a las principales vías de comunicación, ofreciendo una excelente calidad de vida sin renunciar a las comodidades de la ciudad.
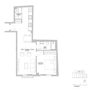
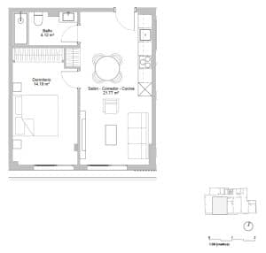
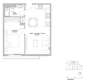
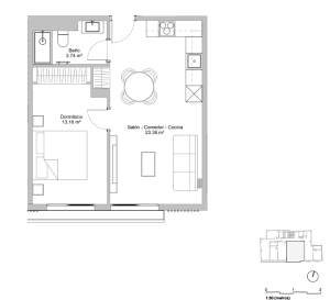
PLANOS
SUPERFICIE CONSTRUIDA
71,51 m²
1 Dormitorio
1 Baño
Cocina salón – comedor

SUPERFICIE CONSTRUIDA
64,57 m²
1 Dormitorio
1 Baño
Cocina salón – comedor

SUPERFICIE CONSTRUIDA
72,71 m²
1 Dormitorio
1 Baño
Cocina salón – comedor

SUPERFICIE CONSTRUIDA
59,50 m²
1 Dormitorio
1 Baño
Cocina salón – comedor
SUPERFICIE CONSTRUIDA
59,50 m²
1 Dormitorio
1 Baño
Cocina salón – comedor

SUPERFICIE CONSTRUIDA
69,88 m²
1 Dormitorio
1 Baño
Cocina salón – comedor

SUPERFICIE CONSTRUIDA
93,60 m²
2 Dormitorios
2 Baños
Cocina salón – comedor

SUPERFICIE CONSTRUIDA
92,70 m²
2 Dormitorios
2 Baños
Cocina salón – comedor

